조용히 머물 수 있는
속도로 살아가는 곳…
조금 느리게 살아도 괜찮다고 믿는…
사람들이
모이는 마을입니다
# 어봉 민박 # 어봉 우드카빙/공방 # 어봉 정원 # 어봉 베이커리
나무를 깎는 시간
머무는 집
아직은 종이 위에 있지만,
곧 현실이 될 이야기 입니다 
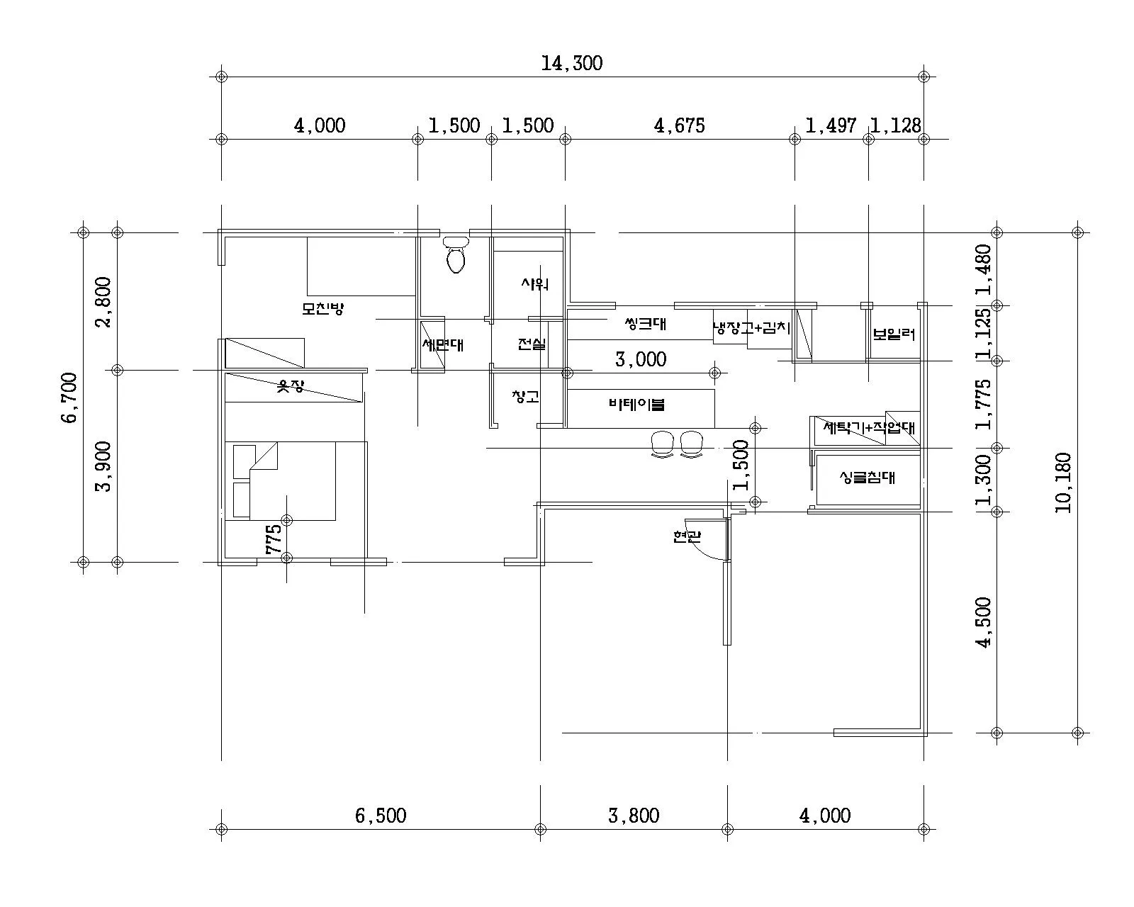
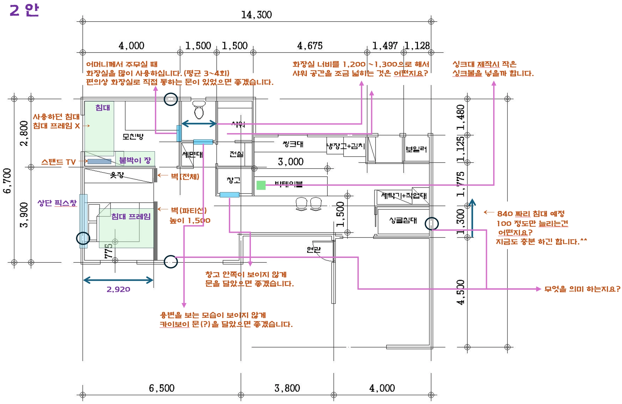
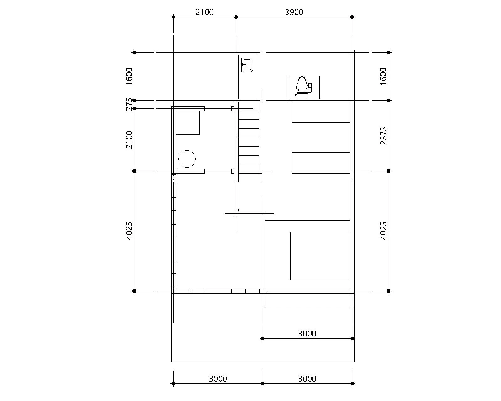
지난 4개월 동안 가미하우징과 많은 상담과 미팅을 거쳐, 우리 가족이 살기 편하면서도 실용적이고, 동시에 아름답게 ‘농촌스러운’ 주거동/민박동 설계도를 완성했습니다.
하지만 설계도가 완성되었다고 해서 모든 판단과 결정이 끝난 것은 아닌 것 같습니다.
실제로 건축을 시작하면, 수많은 선택과 결정을 내려야 할 순간들이 기다리고 있겠지요.
혹자는 집을 지으면 10년은 늙는다고 말합니다.
그래도 저는 최대한 즐겁게, 즐겁게… 스트레스는 덜 받으면서 집을 지어가고 싶습니다.
이번 건축의 디자인·설계·시공을 맡아줄 가미하우징은 기술력이 탄탄하고 건축주 친화적인 건설사라, 혹시 건축주와 시공사 사이에 이견이 생기더라도 의견 조율을 잘 해나갈 수 있을 것 같습니다.
설계 단계에서도 건축주의 니즈를 적극적으로 수용해 주고, 맞지 않는 부분이 있으면 자세히 설명해 주면서 번뜩이는 대안을 제시해 주곤 했습니다.
아, 그리고 건축은 목조주택으로 지어질 예정입니다.
어봉이 친구들이 머무는 곳(주거동)

어봉이 손님들이 머무는 곳(민박동)

고민의 흔적들







4개월여 간의 설계 과정… 드뎌,, 설계도를 완성하다


























